A different take on our Go Eco stove range, the Go Eco Excel 5 Wide Low Lintel is a shorter version of our popular Go Eco Excel range. This stove offers the best of both worlds with large stove performance, with the same 5kW heat output as the rest of the Go Eco range.

This stove is specifically designed to fit into chimneys with a low lintel, enhancing even the most compact of fireplaces. Benefitting from state-of-the-art firebox combustion technology for clearSkies level 5, Ecodesign 2022 ready and DEFRA exempt heating as standard.

Charlton and Jenrick circular logo

Charlton and Jenrick Go Eco Excel 5kW Low Lintel

Key Features:

• Specially designed for low lintel fireplace openings.
• 84.8% efficient.
• Extra powerful air wash system.
• Patented tertiary air system.
• clearSkies Level 5 certified – ultra clean burning.
• SIA Ecodesign 2022 certified and DEFRA Exempt for burning wood in smokeless zones.
• Full multi-fuel capability as standard.
• Laser profiled and fully seam welded room sealed construction for modern houses.
• Cast door construction.
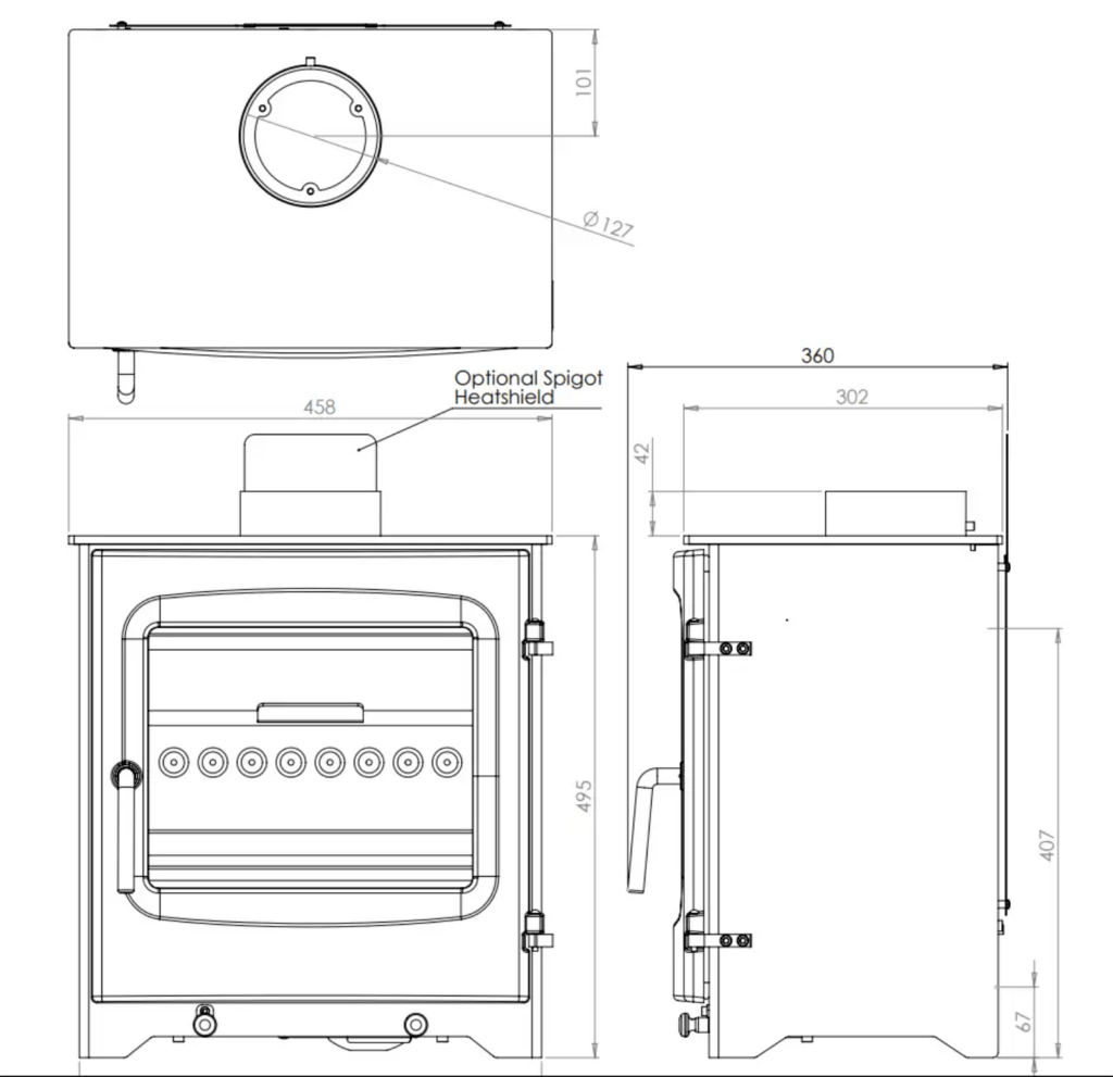
• 300mm (12″) slimline body depth as standard.

Excel 5kw 1
Excel 5kw Drawing

• Static Multi fuel bar Grate.
• Corrosion resistant steel ash pan.
• Firebrick refractory liners for longevity.
• Superimposed hearth compatible.
• Top & Rear flue connection.
• External air compatible as standard with external air connection kit available as an option.
• Double slide controls for full control of the burn.
• 3-year extended parts warranty (first 2 years parts & labour).

cta background scene

Find your local showroom

Visit your nearest showroom to experience our fireplaces in person and get expert installation guidance.

Go to store locator
store locator laptop